Eladó Panellakás ingatlan - Székesfehérvár
Ingatlan azonosító: A/I/2026/0028
« Vissza a listáhozPanellakás
Székesfehérvár, Belváros és környéke
Fejér
57 990 000,- Ft
ZÖLD ÖVEZETBEN 1+3 FÉLSZOBÁS LAKÁS ELADÓ !
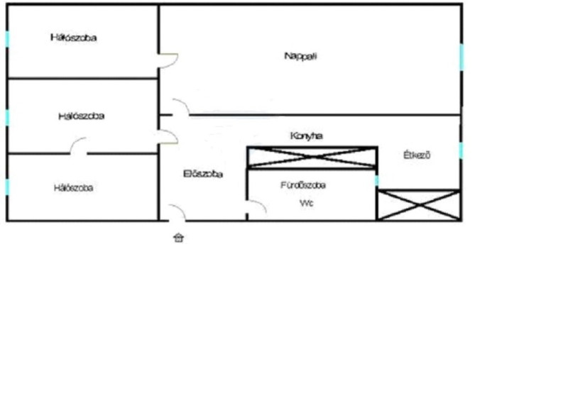
Székesfehérvár zöld övezeti részén, közel a belvároshoz, első emeleti 1+3 félszobás (60nm.) jó állapotú panel lakás eladó .
A ház külsőleg szigetelt, az új ablakok redőnnyel és szúnyoghálóval felszereltek. A radiátorok cseréje megtörtént.
A lakás részei : előszoba, konyha, étkező, fürdőszoba, WC, nappali, 2szoba. A szobák eredeti fa parkettásak, a többi helyiség, járólappal burkolt. Fűtése, távfűtés. A külön nyíló fürdőszoba kádas.
A lakáshoz a pincében közös tároló tartozik. Parkolás az utcán, a ház előtt fizetős övezetben lehetséges, a lakók számára éves parkolóbérlet váltható 7.300 Ft-ért.
Közelben üzletek, óvoda, iskola, orvosi rendelő, játszótér, buszmegálló. A belváros néhány perc séta.
VILÁGOS, ALACSONY REZSI, JÓ ELOSZTÁS, KIVÁLÓ VÁLASZTÁS !!!
Ár: 57.99mFt Tel.: 20/ 399-3600
Irodánk szolgáltatást nyújt Önnek :
ingyenes CSOK és hitel ügyintézésben, energetikai tanúsítvány elkészítésében, értékbecslésben, költöztetésben, lakásfelújításban, lakberendezésben, ügyvédi közreműködésben.
Nézze meg további kínálatunkat a www. feherhazingatlan.hu web oldalunkon.
CSOK és hitel felvételére az ingatlan teljesen megfelel, 20% önerővel is megvásárolható ! CSOK-kal vásárolt ingatlanra NEM KELL illetéket fizetni ez, az állam által elengedésre kerül!
Székesfehérvár településen, 60 m2 -es Panellakás Eladó
| Alapterület: | 60 m2 | Állapot: | Jó |
| Telek: | Fűtés: | Távfűtés | |
| Szobák: | 3 db | Emelet: | 1. emelet |
| Félszobák: | Parkolás: | utcán |
- Hívjanak fel, kérdésem van!
- Megnézem, időpontot kérek!
- Gyorslistára teszem!
- Nyomtatás
- Azonosító: A/I/2026/0028
Kapcsolat: Benczéné Mariann, Tel.: 06 (20) 399-3600
E-mail: m.benczene@feherhazingatlan.hu - Fehérház Ingatlaniroda





