Eladó Családi ház ingatlan - Polgárdi
Ingatlan azonosító: A/I/2025/0093
« Vissza a listáhozCsaládi ház
Polgárdi, Belváros és környéke
Fejér
69 900 000,- Ft
FELÚJÍTOTT CSALÁDI HÁZ ELADÓ POLGÁRDIBAN!
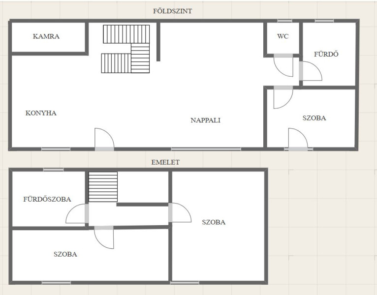
Polgárdiban eladó egy 2022-ben teljes körű felújításon átesett családi ház, amely 1000 m²-es telken helyezkedik el. Az ingatlan eredetileg 2007-ben épült, tégla falazatú, cserépfedésű, a felújítás során pedig a házat falig visszabontották, és saját célra teljesen újjáépítették: új burkolatok, gépészet, elektromos és vízvezeték-rendszer, valamint háromrétegű műanyag nyílászárók alumínium redőnyökkel kerültek beépítésre.
A földszinten (hasznos 70m2) amerikai konyhás nappali, kamra, hálószoba, fürdőszoba és külön WC található, teljesen kész állapotban. Az emeletre (hasznos ~40m2) 2 szoba és egy fürdőszoba került kialakításra, ahol az elektromos hálózat és a fűtéscsövezés már beépítésre került, a befejező munkálatok az új tulajdonosra várnak, így saját ízlés szerint alakítható.
A fűtést elektromos kazán biztosítja, a földszinten teljes padlófűtéssel. Emellett két darab 3,5 kW-os hűtő-fűtő klíma is rendelkezésre áll, amelyek a fűtési szezonban (október 15. – április 15.) H-tarifáról üzemelnek. Az emeletre radiátoros fűtés van előkészítve. A melegvizet elektromos bojler állítja elő. Az ingatlan ipari árammal (3x32A) ellátott.
A gázcsonk a telken belül található, így igény esetén bevezethető.
A ház mögött egy kb. 20 m²-es, fűtött garázs található, amely akár műhelyként is használható. Itt kapott helyet a kazán és a bojler is. A külső szigetelés még nem készült el, azonban a szükséges szigetelőanyag rendelkezésre áll, így a befejezéshez már csak a kivitelezés szükséges.
Az ingatlan elhelyezkedése rendkívül előnyös: a közelben bölcsőde, óvoda és általános iskola található, gyalogosan elérhető bolt, gyógyszertár és buszmegálló is. A vasútállomás lehetővé teszi, hogy mind a Balaton irányába, mind Székesfehérvár–Budapest irányába gyorsan eljussunk, emellett a buszközlekedés is rendelkezésre áll. Székesfehérvár mindössze 20 perc autóval, a Balaton pedig 15 perc alatt elérhető.
KIVÁLÓ VÁLASZTÁS MINDEN KOROSZTÁLY SZÁMÁRA: FIATAL PÁROKNAK, CSALÁDALAPÍTÁS ELŐTT ÁLLÓKNAK, CSALÁDOSOKNAK, SŐT IDŐSEBBEKNEK IS, AKIK EGY KÉSZ, MODERN FÖLDSZINTES OTTHONRA VÁGYNAK, MERT AZ EMELETI RÉSZ BEFEJEZÉSE NEM KÖTELEZŐ, ÍGY AZ OTTHON AZONNAL LAKHATÓ.
I.ár: 69,9 Millió Ft Tel.: +3670/358-8086
Irodánk szolgáltatást nyújt Önnek :
díjmentes hitel ügyintézésben, energetikai tanúsítvány elkészítésében, értékbecslésben, költöztetésben, lakásfelújításban, lakberendezésben és ügyvédi közreműködésben.
Nézze meg további kínálatunkat a www.feherhazingatlan.hu web oldalunkon.
Az ingatlan megfelel a jelenlegi Otthonteremtési támogatás (Otthon Start program), valamint a CSOK Plusz feltételeinek. CSOK-kal vásárolt ingatlanra NEM KELL illetéket fizetni ez, az állam által elengedésre kerül!
Polgárdi településen, 110 m2 -es Családi ház Eladó
| Alapterület: | 110 m2 | Állapot: | Teljesen felújított |
| Telek: | 1000 m2 | Fűtés: | Egyéb fűtés |
| Szobák: | 3 db | Emelet: | |
| Félszobák: | Parkolás: | Garázs |
- Hívjanak fel, kérdésem van!
- Megnézem, időpontot kérek!
- Gyorslistára teszem!
- Nyomtatás
- Azonosító: A/I/2025/0093
Kapcsolat: Csik Barbara, Tel.: 06 (70) 358-8086
E-mail: baraba.csik@feherhazingatlan.hu - Fehérház Ingatlaniroda





