Bérbeadó Téglalakás ingatlan - Székesfehérvár
Ingatlan azonosító: B/I/2025/0130
« Vissza a listáhozTéglalakás
Székesfehérvár, Lövölde és környéke
Fejér
Bérleti díj: 180 000,- Ft/hó
KIADÓ, ERKÉLYES 2 SZOBÁS TÉGLALAKÁS !
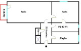
Kiadó, JANUÁRTÓL Székesfehérváron az Interspár közelében, a Lövöldén 2 szobás (55nm.), erkélyes, felújított bútorozott, 3.emeleti téglalakás.
A felújítás kiterjedt : a teljes vezetékrendszerre (víz, villany..), az ablakokra (saját erőből jó minőségű hő- és hangszigeteltek kerültek beépítésre), amik redőnnyel felszereltek, a bejárati ajtót több ponton záródó biztonságira cserélték. A konyha új, mai trendnek megfelelő bútorral felszerelt, a fürdőszoba kádas, ablakkal szellőztethető. Az előszoba gardrób szekrénnyel beépített, ami a háziasszonyt segíti a tárolásban. A szobák eredeti faparkettásak, a többi helyiség járólapos. A meleg vizet átfolyós gázbojler biztosítja. Fűtése: távfűtés. A lakás riasztóval, és klímával felszerelt. Az erkély déli fekvésű, fényárban úszik, jól esik a napi rohanás után kiülni a zöldre néző „teraszra”, megnyugtató hatásban lehet részünk. A lakáshoz a pincében saját tároló tartozik. A közelben : bevásárló központ, iskolák, egészségügyi intézmények, óvodák, iskolák, posta, buszmegálló. A vasútállomás, buszpályaudvar, belváros kb.10perc séta.
Környezetére igényes, nemdohányzó személy vagy pár jelentkezését várjuk kisállat nélkül.
Bérl.díj : 180eFt./hó+rezsi+2havi kaució Tel.: 20/399-3600
Irodánk szolgáltatást nyújt Önnek :
Ingyenes CSOK és hitel ügyintézésben, értékbecslésben, energetikai tanúsítvány elkészítésében, ügyvédi közreműködésben.
Nézze meg további kínálatunkat: web oldalunkon.
Székesfehérvár településen, 54 m2 -es Téglalakás Bérbeadó
| Alapterület: | 54 m2 | Állapot: | Teljesen felújított |
| Telek: | Fűtés: | Távfűtés | |
| Szobák: | Emelet: | 3. emelet | |
| Félszobák: | Parkolás: | utcán |
- Hívjanak fel, kérdésem van!
- Megnézem, időpontot kérek!
- Gyorslistára teszem!
- Nyomtatás
- Azonosító: B/I/2025/0130
Kapcsolat: Benczéné Mariann, Tel.: 06 (20) 399-3600
E-mail: m.benczene@feherhazingatlan.hu - Fehérház Ingatlaniroda





